想必投资火锅店的投资者,都想了解一下别人家的火锅店装修设计方案吧,下面就有郑州装饰设计为各位带来一套完整的火锅店装修设计方案,我们一起来看看吧。

项目背景:
项目背景主要包括:项目名称、项目所在详细地址、项目面积大小、客户经营理念、投资定位等组成。
项目介绍:举例说明。本案火锅店位于成都市武侯区武侯大道xx路x号,客户拟定店名为“炉宴老火锅”,火锅店面积为520平方米,由上下两层组成,属于街店类型的餐厅。店面拟定为点餐式火锅店,投资方意向装修风格为复古工业风装修风格。确定项目背景情况后,火锅店设计公司开始介入,下面便是火锅店设计公司的设计方案。

1、现场测量
前期了解客户项目情况后,就要进行现场测量,现场尺寸测量主要是做平面分析和后期室内设计需要。
2、市场调研
市场调研部分主要是分析火锅店行业状况,主要包括项目所在地周边人口状况,周边火锅店分布状况,周边火锅店消费档次,分析竞争优势,分析竞争劣势。
3、人群定位
根据周边人口状况,来拟定火锅店装修档次,决定火锅店主要服务人群。从而决定火锅店包间数量,餐桌数量等。
4、风格定位
这里的风格定位主要是根据投资方的意见和想法,火锅店设计公司结合店面情况和周边业态,用风格意向图表达火锅店设计风格,设计元素,装饰材料等,后期会在效果图中实际表达。
5、设计主题
对于一家火锅店来说,设计主题也是体现竞争力的一种方式,现在很多火锅店就是缺少特色,缺少主题。主题的表现方式为店面设计的一个中心思想,我们也可以看作是“牛主题”或者“生态主题”“工业主题”等。
6、平面分析
这里的平面分析,主要是更具火锅店的市场定位和装修档次决定,火锅店设计公司会给出每层的平面规划分析,其中主要包括功能分区(收银台位置、厨房位置、包间分布、大厅用餐区分布、主题表现区),人流量走向分布,服务人群动向图等。
7、设计概念
火锅店概念设计主要是把以上装修风格、设计定位、平面分析通过PPT的方式向投资方作以说明,最终确定概念,然后便是方案设计阶段。

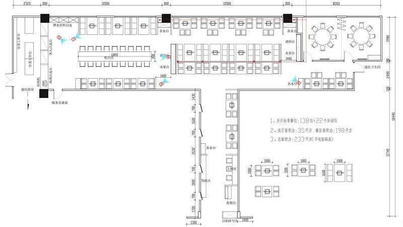
火锅店平面结构分析图
概念确定后便是火锅店设计公司方案设计阶段,方案设计由火锅店设计师完成。设计师主要工作为:
平面梳理、空间结构造型:一层平面规划、二层平面规划。主要包含:厨房位置以及面积、收银台位置和面积、包间位置和面积、公共用餐区位置以及面积、公共区域(卫生间、过道等)位置面积等。
灯光效果:主要灯光位置,灯管辐射范围,强调空间层次感,突出火锅店装修风格等。
色彩运用:火锅店主要色调确定,吊顶风格和色系、墙面风格和色系、地面风格和色系、餐桌风格和色系等。
材料选择:火锅店主要装修耗材选择,各个部分耗材标注,材料颜色以及材质标注。后期装修中会有材料表。
根据设计师设计架构,以及客户需求什么地方出效果图,什么方位出效果图,出几张效果图。火锅店设计公司为客户出规定相关效果图,如火锅店包间效果图、火锅店公共用餐区效果图、调料区效果图等

火锅店效果图设计
火锅店设计公司根据设计师方案和效果图,为火锅店制作施工图,方便火锅店在装修中精确施工,足以达到设计效果。
水电图部分,对于火锅店来说,比较简单。主要包含火锅店装修中的水路、电路走向节点位置、布线的水电施工说明。
施工衔接部分主要是,施工方按照施工图以及材料表装修火锅店,所产生的疑问部分,有时候需要设计单位介入说明,这样才能充分保障火锅店装修效果。
好了,以上便是郑州装饰设计对于一家火锅店装修设计方案的介绍,相信这一套完整的火锅店设计方案能够让投资者充分了解你的火锅店该怎么装。
转载请注明原文地址:http://www.dqdwyzn.cn/wenda/4903.html
现在预约咨询,立即享受免费量房设计&施工报价
10秒快速在线申请