qq叫小姐暗号,上海品茶工作室闵行,空降少女免费下载安装,商务ww伴游招聘大圈

CASE 办公室装修设计设计

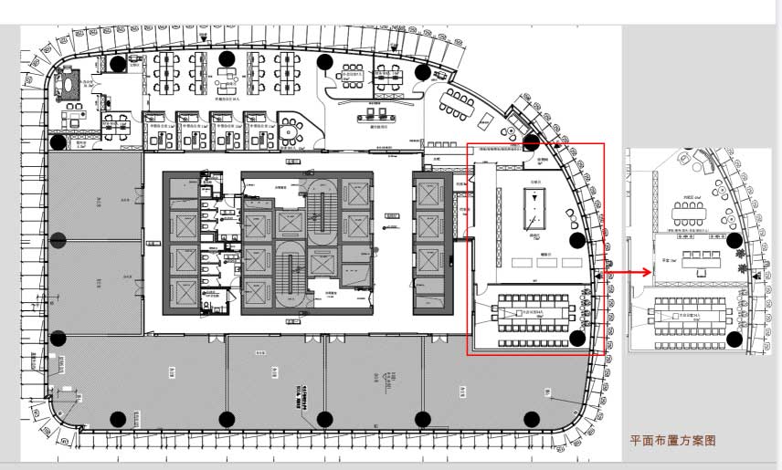
郑州装修设计公司 >> 办公室装修设计 >>800㎡郑州办公室装修设计效果图

800㎡郑州办公室装修设计效果图

2024-08-28 629 预约参观

千舟装饰是一家专业的办公室装修设计设计公司,提供办公室装修设计设计与装修施工服务!办公室装修设计设计案例专区推荐800㎡郑州办公室装修设计效果图,800平米办公室装修设计效果图,郑州金水区办公室装修设计方案、800平米办公室装修设计效果图、800平米办公室装修设计施工报价明细!

800㎡郑州办公室装修设计效果图


项目名称办公室装修设计

项目位置 : 郑州金水区

项目面积:800平米

项目介绍:千舟设计

在线预约设计师

请输入您的称呼
请输入您的手机号码请正确输入您的手机号码
请输入装修面积
RelevantCASE 相关案例

1000+
业主共同见证


免费验房/量房设计/施工报价
专业设计师/自营施工队
不转包/不分包/曾诺0增项
千舟装饰以品质赢得口碑

booking

现在预约咨询,立即享受免费量房设计&施工报价

10秒快速在线申请

  • 请输入空间类型
  • 请输入建筑面积
  • 请输入您的称呼
  • 请输入您的电话